Maison de village route des vins
Menu
Banniere

Nos annonces immobilières proche de chez vous

  1. Accueil
  2. Nos Annonces
  3. Vente
  4. Maison
  5. Voegtlinshoffen
  6. Maison-de-village-route-des-vins-2

Maison de village route des vins

VOEGTLINSHOFFEN
Maison - 3 chambres - 120m²
Exclusivité
Vente
215 000 €
Ref. 12186

Visite virtuelle

Description

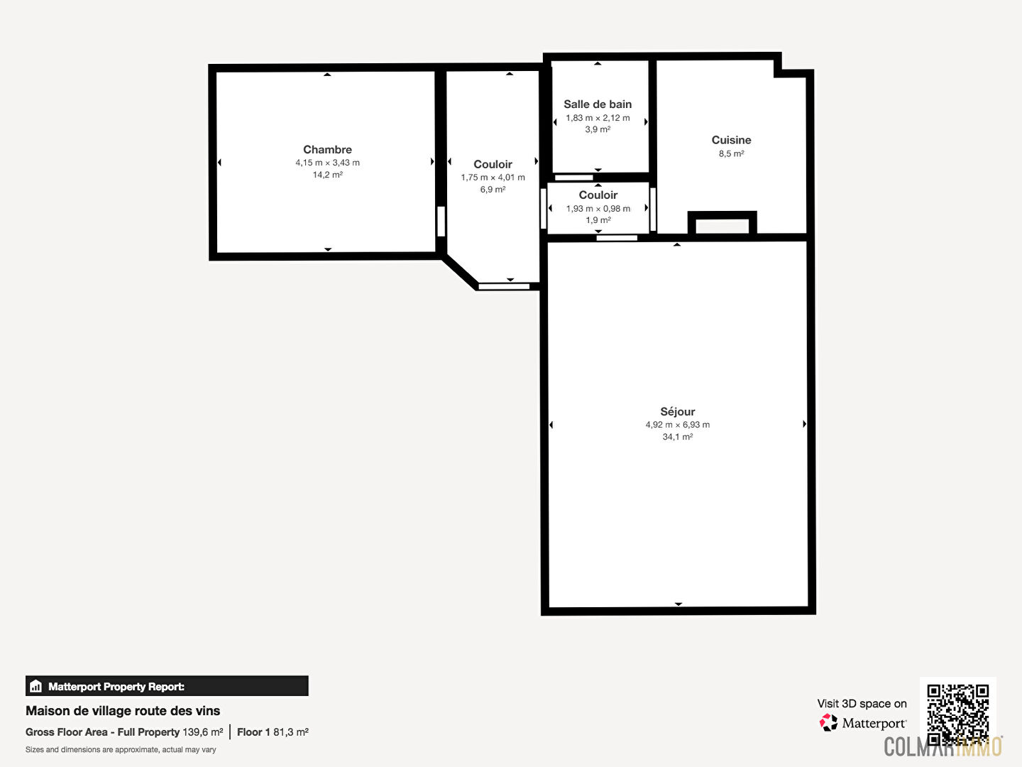
Située au coeur du village de Voegtlinshoffen, cette maison datant des années 1800 séduit par son authenticité et ses beaux volumes. Élevée sur trois niveaux et d’une surface habitable d’environ 120 m² au sol, elle offre un cadre chaleureux et fonctionnel.

Au rez-de-chaussée, vous trouverez un sous-sol complet comprenant cave, buanderie, garage et espace de stockage.

Au 1er niveau, une terrasse vous accueille avant de découvrir une entrée desservant une chambre, un couloir, une salle d’eau avec WC, une cuisine indépendante et un vaste salon-séjour lumineux.

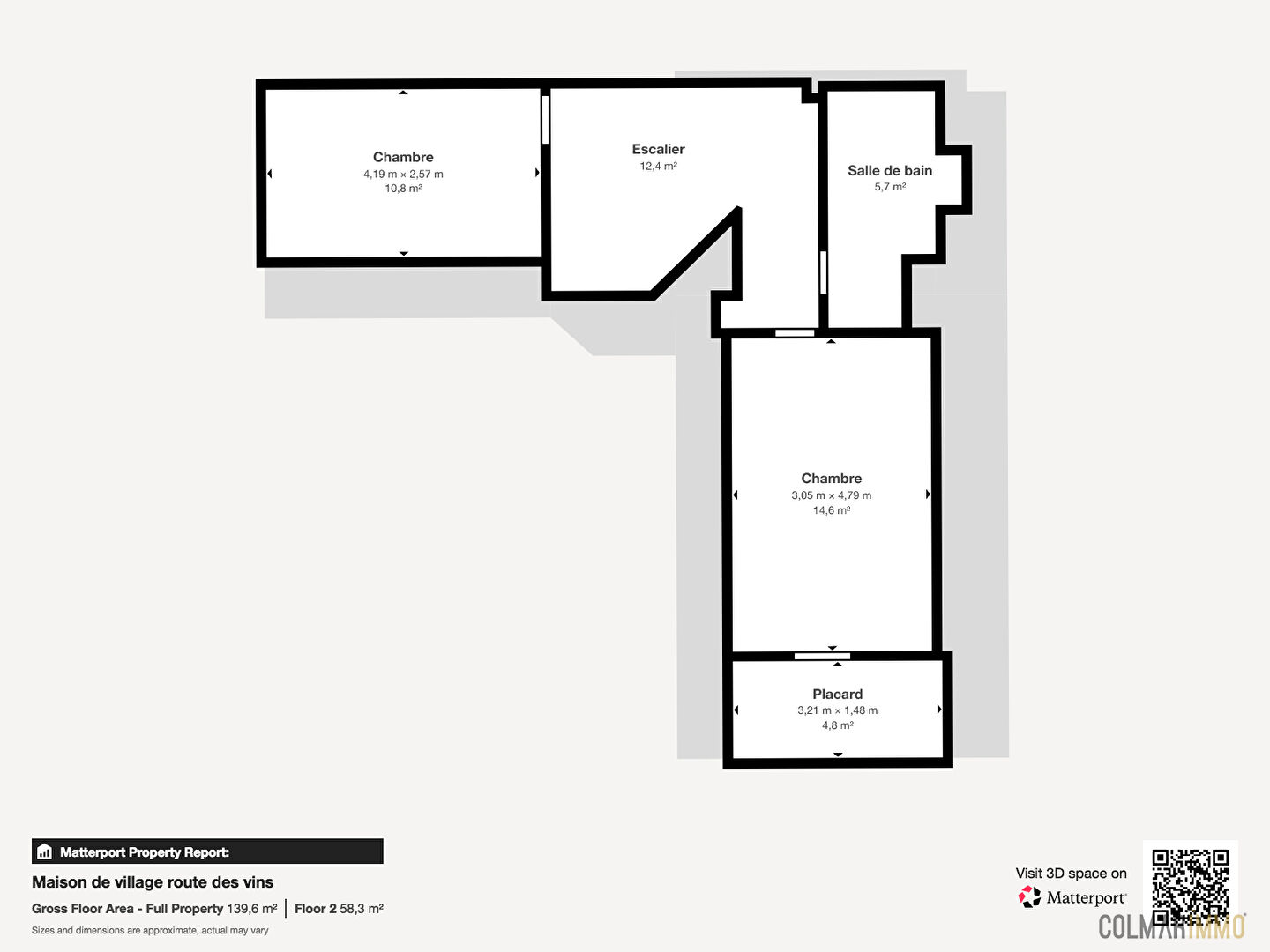
A l’étage, un palier dessert deux chambres supplémentaires, dont une avec espace dressing, un dégagement et une salle d’eau avec toilettes.

Idéal pour un premier achat ou pour un projet de résidence secondaire
(7.50 % honoraires TTC à la charge de l’acquéreur.)

Les informations sur les risques auxquels ce bien est exposé sont disponibles sur le site Géorisques : www.georisques.gouv.fr

Caractéristiques du bien

Surface : 120 m²

Terrain : 110 m²

Année de construction : 1800

Etat général : Bon Etat

Nombre d’étages : 3

Pièces : 5

Chambres : 3

Chauffage : Individuel

Cuisine : Independante

Eau chaude : Chaudière

Cave : oui

DPE & GES

Diagnostic de performance énergétique
DPE vierge Consommations non exploitables
* Dont émissions de gaz à effet de serre
GES vierge Consommations non exploitables

Localisation


À propos du prix

215 000 €
Honoraires à la charge de l'acquéreur : % du prix du bien hors honoraires
Taxe foncière : 604€
Barème des honoraires

COLMARÎMMO

1 rue du Nord
68000 Colmar
Notre agence immobilière à Colmar Appelez-nous

Ce bien vous intéresse ?

Contactez-nous pour ce bien en utilisant le formulaire ci-dessous :


    Veuillez prouver que vous êtes humain en sélectionnant l’avion.

    Nos biens qui pourraient vous intéresser

    Découvrez nos dernières annonces de biens

    Exclusivité
    Exclusivité
    Exclusivité
    Exclusivité
    Exclusivité